Trong phân khúc bất động sản dòng tiền, việc lựa chọn kích thước thang máy chung cư mini phù hợp đóng vai trò quyết định đến hiệu suất kinh doanh và sự an toàn của cư dân. Một hệ thống thang máy được tính toán kỹ lưỡng không chỉ giúp việc di chuyển thuận tiện mà còn gia tăng giá trị thẩm mỹ và giá thuê cho tòa nhà. Tại Fuji Lift Việt Nam, chúng tôi mang đến những giải pháp thang máy Fuji Nhật Bản được tùy biến riêng cho các tòa nhà có diện tích hạn chế nhưng lưu lượng giao thông cao.
1. Tại sao chung cư mini cần tính toán kích thước thang máy kỹ lưỡng?

Khác với nhà phố, chung cư mini thường có từ 5-10 tầng với mật độ cư dân từ 20-50 người. Do đó, thang máy cần đáp ứng:
-
Tải trọng vừa đủ: Tránh tình trạng quá tải trong giờ cao điểm.
-
Kích thước cabin tối ưu: Đảm bảo vận chuyển được các vật dụng cơ bản như nệm, tủ quần áo nhỏ hoặc máy giặt.
-
Hố thang tiết kiệm: Dành tối đa diện tích cho hành lang và phòng ở.
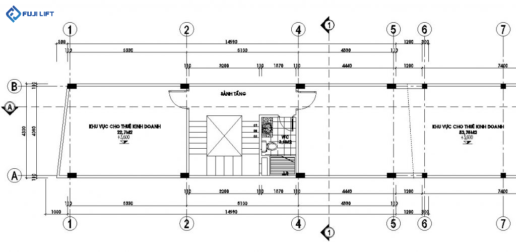
2. Các thông số kích thước thang máy chung cư mini phổ biến
Tùy vào quy mô số lượng phòng, chủ đầu tư có thể lựa chọn các mức tải trọng sau:
Phân khúc tải trọng 450kg - 630kg (Dành cho nhà 20-30 người)
Đây là dòng phổ biến nhất cho chung cư mini diện tích sàn dưới 100m².
-
Kích thước hố thang: 1600mm x 1600mm (hoặc 1800mm x 1500mm).
-
Kích thước cabin: 1200mm x 1000mm.
-
Cửa thang: 700mm - 800mm.

Phân khúc tải trọng lớn – Kích thước thang máy 1000kg
Với các tòa chung cư mini cao cấp, số tầng trên 8 hoặc có diện tích sàn rộng, việc sử dụng kích thước thang máy 1000kg là giải pháp thông minh để giảm thời gian chờ đợi.
-
Kích thước hố thang: 2400mm x 2400mm.
-
Sức chứa: 13-15 người/lượt.
-
Ưu điểm: Vận hành bền bỉ, tốc độ cao (90m/phút - 105m/phút), đáp ứng tiêu chuẩn phòng cháy chữa cháy khắt khe.
3. Giải pháp thang máy mini không hố pit cho công trình cải tạo
Nhiều chủ đầu tư chuyển đổi nhà ở cũ thành chung cư mini thường gặp khó khăn vì không thể đào hố Pit sâu do vướng móng bè hoặc công trình ngầm. Lúc này, kích thước thang máy mini không hố pit (hoặc hố pit nông chỉ 300mm) của Fuji là giải pháp cứu cánh.
-
Ưu điểm: Không can thiệp cấu trúc móng, lắp đặt linh hoạt tại giếng trời hoặc ngoài trời bao kính.
-
Công nghệ: Sử dụng truyền động trục vít hoặc cáp kéo công nghệ mới giúp triệt tiêu yêu cầu về chiều sâu hố pit mà vẫn đảm bảo an toàn tuyệt đối.
4. Tiêu chuẩn kỹ thuật và an toàn cho thang máy chung cư mini

Khi lắp đặt thang máy cho chung cư mini, Fuji Lift Việt Nam luôn chú trọng 3 yếu tố:
-
Hệ thống kiểm soát tầng (Access Control): Sử dụng thẻ từ hoặc vân tay để quản lý người lạ, đảm bảo an ninh cho cư dân.
-
Bộ cứu hộ tự động (ARD): Trong trường hợp mất điện đột ngột, thang sẽ tự động đưa cư dân về tầng gần nhất và mở cửa.
-
Công nghệ Inverter (VVVF): Giúp thang khởi động và dừng êm ái, giảm tiếng ồn ảnh hưởng đến các phòng ở sát hố thang.
5. Fuji Lift Việt Nam – Đơn vị tư vấn lắp đặt thang máy chung cư chuyên nghiệp
Với hơn 10 năm kinh nghiệm, chúng tôi tự hào mang đến cho khách hàng:
-
Thiết kế "May đo": Tư vấn kích thước dựa trên lưu lượng người thực tế và diện tích đất.
-
Thiết bị chính hãng: Động cơ, tủ điều khiển Fuji nhập khẩu đồng bộ, đầy đủ chứng chỉ CO, CQ.
-
Giá thành tối ưu: Chính sách giá cạnh tranh nhất cho các chủ dự án chung cư mini, căn hộ dịch vụ.
Bạn đang cần bảng vẽ chi tiết và báo giá lắp đặt thang máy cho chung cư mini? Hãy để các chuyên gia tại Fuji Lift Việt Nam hỗ trợ bạn tối ưu không gian và chi phí ngay hôm nay.

