Lựa chọn kích thước thang máy tải hàng là khâu quan trọng nhất trong quá trình đầu tư, quyết định đến khả năng vận hành của hệ thống logistics trong nhà máy hoặc kho xưởng. Một kích thước không phù hợp có thể dẫn đến tắc nghẽn, lãng phí không gian hoặc thậm chí là nguy hiểm. Bài viết này, Fuji Lift Việt Nam sẽ cung cấp bảng tiêu chuẩn và hướng dẫn chi tiết về kích thước thang máy tải hàng theo từng tải trọng, cách tối ưu chiều rộng cửa thang hàng và chiều sâu cabin tải hàng để đảm bảo hiệu quả vận chuyển cao nhất.
Bảng Kích Thước Thang Máy Tải Hàng Tiêu Chuẩn (Fuji Lift)
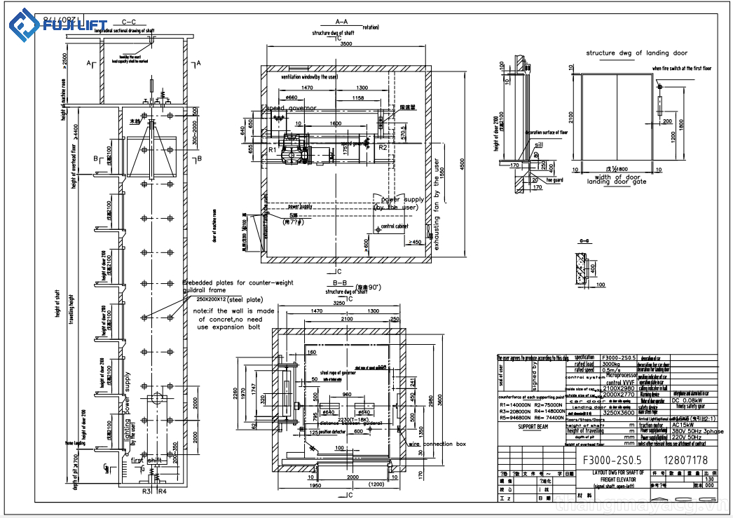
Dưới đây là bảng thông số tham khảo về kích thước thang máy tải hàng cho các tải trọng phổ biến:
|
Tải Trọng (kg) |
Kích Thước Hố Thang (W x D) |
Kích Thước Cabin (W x D) |
Chiều Rộng Cửa Thang Hàng (W) |
|---|---|---|---|
|
300 |
1400mm x 1400mm |
1000mm x 1000mm |
800mm |
|
500 |
1600mm x 1600mm |
1200mm x 1200mm |
900mm |
|
1000 |
2000mm x 2000mm |
1600mm x 1600mm |
1200mm |
|
2000 |
2500mm x 2500mm |
2000mm x 2000mm |
1400mm |
Ghi chú: W: Chiều Rộng; D: Chiều Sâu. Kích thước có thể điều chỉnh linh hoạt theo công trình thực tế.
Nguyên Tắc Tối Ưu Hóa Kích Thước Thang Máy
Việc lựa chọn kích thước thang máy tải hàng cần tuân theo nguyên tắc "Tối ưu hóa không gian sử dụng thực tế".
a. Chiều Rộng Cửa Thang Hàng (W)
Chiều rộng cửa thang hàng là yếu tố quan trọng nhất, phải lớn hơn chiều rộng của thiết bị chất dỡ (xe đẩy hoặc pallet).
-
Đối với Pallet: Pallet tiêu chuẩn 1200mm. Do đó, chiều rộng cửa thang hàng tối thiểu phải là 1300mm để xe nâng hoặc pallet dễ dàng di chuyển vào.
-
Lưu ý cửa mở: Nên ưu tiên cửa mở trượt về hai phía (CO - Center Opening) vì tốc độ mở nhanh và tiết kiệm không gian hơn cửa mở về một phía (SO - Side Opening).

b. Chiều Sâu Cabin Tải Hàng (D)
Chiều sâu cabin tải hàng phải lớn hơn chiều dài của pallet hoặc hàng hóa cồng kềnh nhất mà bạn cần vận chuyển.
-
Thao tác: Chiều sâu cabin tải hàng cần tính toán thêm khoảng không gian 150mm - 200mm để nhân viên có thể xoay trở, sắp xếp hàng hóa, hoặc để xe nâng/xe đẩy vào đúng vị trí.
-
Tỷ lệ vàng: Đối với thang tải hàng, cabin có tỷ lệ chiều rộng và chiều sâu gần nhau (ví dụ: 1600mm x 1600mm cho 1000kg là lý tưởng nhất cho việc chất dỡ.
c. Kích thước Hố Thang

Kích thước hố thang (không gian xây dựng) phải bao gồm cabin, rail dẫn hướng, đối trọng và các bộ phận máy móc khác. Khi thiết kế, luôn phải dành khoảng không gian tối thiểu giữa cabin và hố thang để đảm bảo hoạt động an toàn và bảo trì dễ dàng.
Phương Pháp Lựa Chọn Thang Máy Tải Hàng Đúng
Để chọn kích thước thang máy tải hàng chính xác, Fuji Lift Việt Nam khuyến nghị quy trình sau:
-
Xác định phương tiện chính: Xác định hàng hóa sẽ được chất dỡ bằng pallet, xe nâng, xe đẩy hay bằng tay.
-
Tính toán tải trọng max: Tính toán trọng lượng hàng hóa nặng nhất và cộng thêm trọng lượng của phương tiện chất dỡ (nếu có). Ví dụ: Xe nâng điện (Xe nâng điện 400kg) + Pallet hàng (600kg) = 1000kg (chọn thang 1000kg).
-
Đo đạc thực tế: Đo kích thước vật lý lớn nhất (Dài x Rộng x Cao) của hàng hóa và thiết bị chất dỡ. Kích thước thang máy tải hàng phải lớn hơn kích thước này ít nhất 15\% về chiều rộng và chiều sâu.
-
Tham vấn kỹ thuật: Liên hệ với chuyên gia Fuji Lift để được tư vấn kích thước hố thang chính xác, đảm bảo phù hợp với tiêu chuẩn an toàn và cấu trúc công trình.
Xem thêm >> Kích thước thang máy chở hàng chung cư

Fuji Lift Việt Nam – Tối Ưu Hóa Kích Thước Thang Máy Tải Hàng
Fuji Lift Việt Nam cam kết cung cấp giải pháp thang máy tải hàng với kích thước thang máy tải hàng được tùy chỉnh linh hoạt, đáp ứng mọi yêu cầu vận chuyển, dù là các pallet hàng quá khổ hay các vật liệu đặc thù. Chúng tôi đảm bảo chiều rộng cửa thang hàng và chiều sâu cabin tải hàng luôn được thiết kế để tối ưu hóa hiệu suất làm việc của doanh nghiệp bạn.
Bạn đang băn khoăn về kích thước thang máy tải hàng cho kho xưởng của mình? Hãy liên hệ với Fuji Lift Việt Nam ngay hôm nay để được khảo sát và tư vấn kích thước hố thang miễn phí, đảm bảo sự an toàn và hiệu quả vận chuyển.
Thông tin liên hệ:
CÔNG TY CỔ PHẦN FUJI LIFT VIỆT NAM
Trụ sở chính: Số 22 Đường số 68 – TML, Phường Cát Lái, TP.Hồ Chí Minh
Điện thoại: 028 6274 3223
Hotline: 0978 949 056 – 0961 553 509
Email: info@fujilift.com.vn
Trụ sở Hà Nội:
CÔNG TY TNHH FUJI LIFT HÀ NỘI
Địa chỉ: Số 112/28 đường Đại Linh, P.Đại Mỗ, TP.Hà Nội
Điện thoại: 0899 666 366
VĂN PHÒNG ĐẠI DIỆN PHÚ YÊN
Địa chỉ: Số 157 Nguyễn Văn Linh, P.Phú Yên, Tỉnh Đắk Lắk
Điện thoại: 0978 949 056

